生活空間と居室
- 道志会トップ
- 介護付有料老人ホームヴィラ城山
- 生活空間と居室
1階平面図と共用施設
居室をクリックすると、部屋の見取り図の一例と利用料および室内の写真をご覧頂けます

イベント広場(中庭)
美術展示コーナー
絵画展示コーナー
絵画(例1)
絵画(例2)
健康管理室
不二保育園
2階平面図と共用施設
居室をクリックすると、部屋の見取り図の一例と利用料および室内の写真をご覧頂けます

居室数 | 26室(全室介護付きの居室) 部屋のタイプは全室Dタイプ |
---|---|
居室面積 | 18.00~19.80m² |
共用施設 | 食堂兼機能訓練室・談話室・浴室(一般浴、機械浴)・洗濯室 ・健康管理室 |
Dタイプ居室の見取り図の一例(D1タイプ)
面積 | 19.80m² |
---|---|
入居一時金 | 要支援・要介護の方 580万円 自立の方 750万円 |
月額利用料 | 177,700円(含む、家賃・管理費・食費) 但し、要支援、要介護の方は上記金額に介護保険給付の負担額が加算されます。 |
居室
洗面台
機械浴室
一般浴室
談話室
食堂兼機能訓練室
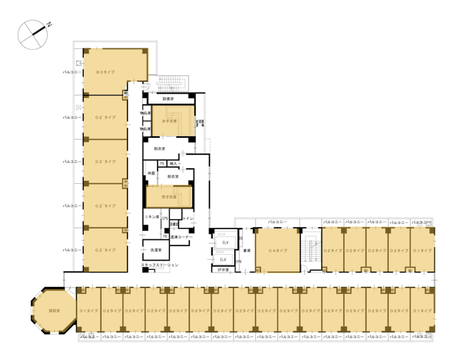
3階平面図と共用施設
居室をクリックすると、部屋の見取り図の一例と利用料および室内の写真をご覧頂けます

居室数 | D(1,2)タイプ 21室 C(2,4)タイプ 5室 B(3)タイプ 1室 |
---|---|
居室面積 | Dタイプ 18.00~19.80m² Cタイプ 36.00~37.80m² Bタイプ 49.68m² |
共用施設 | 浴室(男性用、女性用) 談話室・洗濯室 |
Bタイプ見取り図の一例(B2タイプ)
面積 | 51.60m² |
---|---|
入居一時金 | 自立の方 2,300万円 要支援・要介護の方 1,530万円 |
月額利用料 | 248,784円(含む、家賃・管理費食費) 但し、要支援・要介護の方は上記金額に介護保険給付の自己負担額が加算 |
居間・寝室
浴室・洗面台
Cタイプ見取り図の一例(C1タイプ)
面積 | 36.00m²(ベランダ部分を除く) |
---|---|
入居一時金 | 要支援・要介護の方 1,030万円 自立の方 1,450万円 |
月額利用料 | 207,120円(含む、家賃・管理費・食費) 但し、要支援、要介護の方は上記金額に介護保険給付の自己負担額が加算されます。 |
居間・寝室
洗面台・トイレ
Dタイプ居室の見取り図の一例(D1タイプ)
面積 | 19.80m² |
---|---|
入居一時金 | 要支援・要介護の方 580万円 自立の方 750万円 |
月額利用料 | 177,700円(含む、家賃・管理費・食費) 但し、要支援、要介護の方は上記金額に介護保険給付の負担額が加算されます。 |
居室
洗面台
女性浴室
男性浴室
談話室
4階平面図と共用施設
居室をクリックすると、部屋の見取り図の一例と利用料および室内の写真をご覧頂けます

居室数 | D(1,2)タイプ 21室 C(3,3’)タイプ 2室 B1タイプ 1室 |
---|---|
居室面積 | D(1,2)タイプ 19.00~19.80m² C(3,3’)タイプ 26.40~27.72m² B1タイプ 54.18m² |
共用施設 | 食堂兼機能訓練室・談話室・浴室(一般浴、機械浴)・洗濯室 ・健康管理室 |
Cタイプ見取り図の一例(C1タイプ)
面積 | 36.00m²(ベランダ部分を除く) |
---|---|
入居一時金 | 要支援・要介護の方 1,030万円 自立の方 1,450万円 |
月額利用料 | 207,120円(含む、家賃・管理費・食費) 但し、要支援、要介護の方は上記金額に介護保険給付の自己負担額が加算されます。 |
居間・寝室
洗面台・トイレ
Bタイプ見取り図の一例(B2タイプ)
面積 | 51.60m² |
---|---|
入居一時金 | 自立の方 2,300万円 要支援・要介護の方 1,530万円 |
月額利用料 | 248,784円(含む、家賃・管理費食費) 但し、要支援・要介護の方は上記金額に介護保険給付の自己負担額が加算 |
居間・寝室
浴室・洗面台
食堂・機械訓練室)
浴室
機械浴室
談話室
Dタイプ居室の見取り図の一例(D1タイプ)
面積 | 19.80m² |
---|---|
入居一時金 | 要支援・要介護の方 580万円 自立の方 750万円 |
月額利用料 | 177,700円(含む、家賃・管理費・食費) 但し、要支援、要介護の方は上記金額に介護保険給付の負担額が加算されます。 |
居室
洗面台
5階平面図と共用施設
居室をクリックすると、部屋の見取り図の一例と利用料および室内の写真をご覧頂けます

居室数 | D(1,2)タイプ 5室 C(1,2,3)タイプ 10室 B(1,2,2‘)タイプ 4室 |
---|---|
居室面積 | Dタイプ 18.00~19.80m² Cタイプ 26.96~36.81m² Bタイプ 50.58~51.44m² |
共用施設 | 娯楽室・理美容室・談話室 |
Cタイプ見取り図の一例(C1タイプ)
面積 | 36.00m²(ベランダ部分を除く) |
---|---|
入居一時金 | 要支援・要介護の方 1,030万円 自立の方 1,450万円 |
月額利用料 | 212,700円(含む、家賃・管理費・食費) 但し、要支援、要介護の方は上記金額に介護保険給付の自己負担額が加算されます。 |
居間・寝室
洗面台・トイレ
Bタイプ見取り図の一例(B2タイプ)
面積 | 51.60m² |
---|---|
入居一時金 | 自立の方 2,300万円 要支援・要介護の方 1,530万円 |
月額利用料 | 254,580円(含む、家賃・管理費食費) 但し、要支援・要介護の方は上記金額に介護保険給付の自己負担額が加算 |
居間・寝室
浴室・洗面台
談話室
Dタイプ居室の見取り図の一例(D1タイプ)
面積 | 19.80m² |
---|---|
入居一時金 | 要支援・要介護の方 580万円 自立の方 750万円 |
月額利用料 | 177,700円(含む、家賃・管理費・食費) 但し、要支援、要介護の方は上記金額に介護保険給付の負担額が加算されます。 |
居室
洗面台
娯楽室
理美容室
娯楽室
6階平面図と共用施設
居室をクリックすると、部屋の見取り図の一例と利用料および室内の写真をご覧頂けます

居室数 | D(1,2)タイプ 5室 C(1,2,3)タイプ 10室 B(1,2,2‘)タイプ 4室 |
---|---|
居室面積 | Dタイプ 18.00~19.80m² Cタイプ 26.96~36.81m² Bタイプ 50.58~51.44m² |
共用施設 | 娯楽室・理美容室・談話室 |
展望テラス
Aタイプ見取り図の一例(A1タイプ)
面積 | 63.90m² |
---|---|
入居一時金 | 自立の方 2,930万円 要支援・要介護の方 1,830万円 |
月額利用料 | 266,784円(含む、家賃・管理費・食費) 但し、要支援・要介護の方は上記金額に介護保険給付の自己負担額が加算されます。 |
居室
キッチン
談話室
Cタイプ見取り図の一例(C1タイプ)
面積 | 36.00m²(ベランダ部分を除く) |
---|---|
入居一時金 | 要支援・要介護の方 1,030万円 自立の方 1,450万円 |
月額利用料 | 207,120円(含む、家賃・管理費・食費) 但し、要支援、要介護の方は上記金額に介護保険給付の自己負担額が加算されます。 |
居間・寝室
洗面台・トイレ